
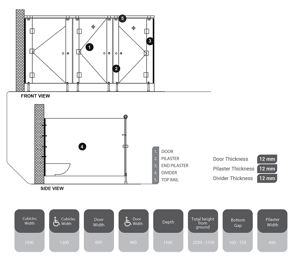
Constructed from Century High Pressure Laminate (HPL) compact laminates, manufactured through high pressure and temperature processes in accordance with EN 438- Part 4 standards. The panel's core comprises a specified number of Kraft papers impregnated with thermosetting phenolic resin, while the decorative layer is impregnated with thermosetting Melamine resin. These panels offer exceptional resistance to scratches, abrasions, heat, cigarette burns, chemicals, impacts, graffiti, and moisture, as well as possessing anti-bacterial properties.












