ENQUIRE NOW
Design Without LimitsUnparalleled Freedom of Choice

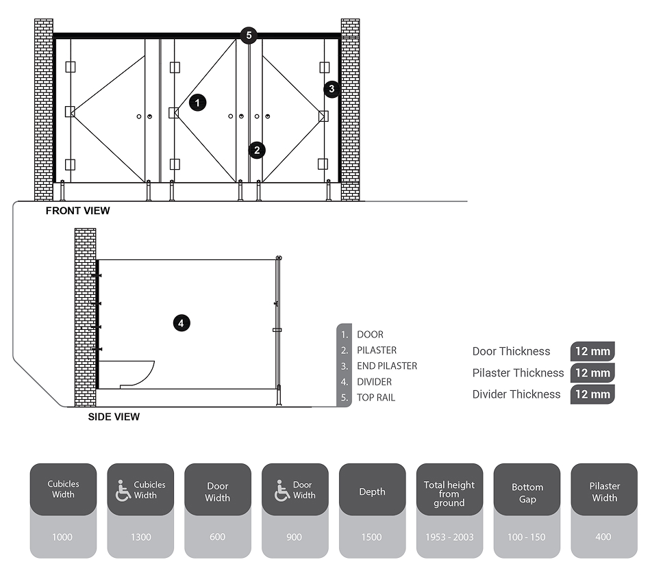
Constructed from Century High Pressure Laminate (HPL) compact laminates, manufactured through high pressure and temperature processes in accordance with EN 438- Part 4 standards. The panel's core comprises a specified number of Kraft papers impregnated with thermosetting phenolic resin, while the decorative layer is impregnated with thermosetting Melamine resin. These panels offer exceptional resistance to scratches, abrasions, heat, cigarette burns, chemicals, impacts, graffiti, and moisture, as well as possessing anti-bacterial properties.

Accessories & Hardware
  • Stainless steel legs offer enhanced cleaning accessibility
  • Powder-coated aluminum top rail and long channel construction which fuses afordability with lasting durability.
  • Self-sustained structure
  • Quality SS accessories for achieving a superior look and performance.
  • Suitable for wet and dry environments
  • THUMB TURN
  • OCCUPANCY INDICATOR
  • DOOR KNOB
  • ADJUSTABLE LEG
  • SPRING HINGES
  • COAT HOOK
We are here to help you.ENQUIRE NOW